L’intervento ha riguardato la risoluzione di criticità microclimatiche e igienico-sanitarie riscontrate nei locali interrati di un importante stabilimento del settore beverage. La problematica, legata alla presenza di umidità e odori derivanti dall’impianto di trattamento acque esistente, richiedeva la progettazione di un sistema di estrazione dell’aria capillare, capace di integrarsi in un ambiente industriale complesso e già in piena fase operativa.
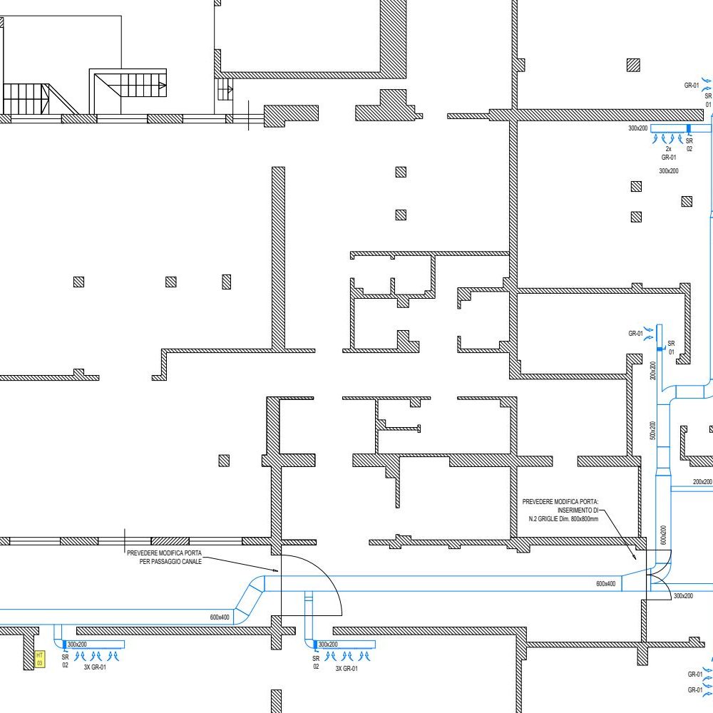
Per garantire un’installazione rapida e priva di imprevisti, l’attività è stata impostata su un approccio di ingegneria digitale avanzata. Il processo è iniziato con un rilievo integrale dell’area tramite tecnologia LIDAR, che ha permesso di ottenere una nuvola di punti millimetrica dello stato di fatto. Questa base dati è stata fondamentale per mappare ogni interferenza strutturale e impiantistica presente nel piano interrato, fornendo una rappresentazione fedele dei volumi disponibili.
La successiva fase di progettazione ha visto l’integrazione della nuvola di punti direttamente nei software di modellazione, consentendo di definire il percorso del nuovo impianto di estrazione con estrema accuratezza. Tale metodologia ha permesso di ottimizzare il posizionamento dei condotti, evitando collisioni con i macchinari preesistenti e riducendo drasticamente la necessità di modifiche in fase di montaggio. Prima dell’avvio del cantiere, la soluzione è stata validata attraverso una restituzione grafica realistica, che ha offerto al cliente una visione chiara dell’impatto spaziale e funzionale dell’opera.
L’impiego coordinato di rilievo laser e modellazione 3D ha consentito di completare l’installazione in tempi ridotti, garantendo il ripristino delle condizioni di salubrità ambientale e l’ottimizzazione dell’area di lavoro. L’intervento conferma come l’integrazione tra tecnologie di rilievo digitale e progettazione meccanica sia l’elemento chiave per gestire con successo il revamping impiantistico in contesti industriali ad alta densità.



